Kensett Add Plan to Favorites

Please select a community to see community-specific pricing.
This Home is Available In:


Floorplan Quickview

  • Kensett Standard First FloorKensett Standard First Floor
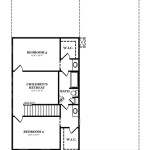
  • Kensett Standard Second FloorKensett Standard Second Floor
  • Kensett Optional First FloorKensett Optional First Floor
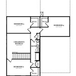
  • Kensett Optional Second FloorKensett Optional Second Floor
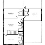
  • Kensett Second Floor with First FloorKensett Second Floor with First Floor
  • Kensett Optional Third BathKensett Optional Third Bath
  • Kensett Optional Master Bath
Home prices are subject to change due to lot restrictions, elevation premiums, market conditions, or current offerings. Please contact the Sales Manager at your community of interest for details or questions.