Madison Add Plan to Favorites

Please select a community to see community-specific pricing.
This Home is Available In:


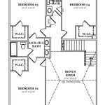
Floorplan Quickview

Home prices are subject to change due to lot restrictions, elevation premiums, market conditions, or current offerings. Please contact the Sales Manager at your community of interest for details or questions.