Newcastle
Please select a community to see community-specific pricing.
This Home is Available In:






Floorplans by Community
THE CREST AT LADD PARK (ONLY)
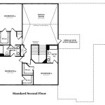
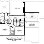
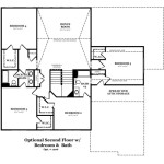
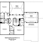
*SIMILAR* floor plans/front elevations shown – the ones shown here are for exhibit only. FLOOR PLAN AND ELEVATION IMAGES SHOWN ARE NOT FINAL – ONLY TO BE USED AS AN IDEA OF WHAT WILL BE AVAILABLE. Floor plans for THE CREST AT LADD PARK (ONLY) community are still under development and in active approval process with the city of Franklin.
THE CREST AT LADD PARK (ONLY)









