Russell Add Plan to Favorites

Please select a community to see community-specific pricing.
This Home is Available In:


Floorplan Quickview

  • Russell Standard First FloorRussell Standard First Floor
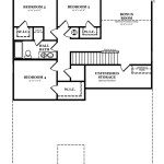
  • Russell Standard Second FloorRussell Standard Second Floor
  • Russell First Floor with Basement AccessRussell First Floor with Basement Access
  • Russell Optional Bedroom & BathRussell Optional Bedroom & Bath
  • Russell Optional First FloorRussell Optional First Floor
  • Russell Optional Jack & Jill BathRussell Optional Jack & Jill Bath
  • Russell Optional KitchenRussell Optional Kitchen
  • Russell Optional Shower at Master BathRussell Optional Shower at Master Bath
Home prices are subject to change due to lot restrictions, elevation premiums, market conditions, or current offerings. Please contact the Sales Manager at your community of interest for details or questions.