Brunswick

This Home is Available In:


Floorplan Quickview

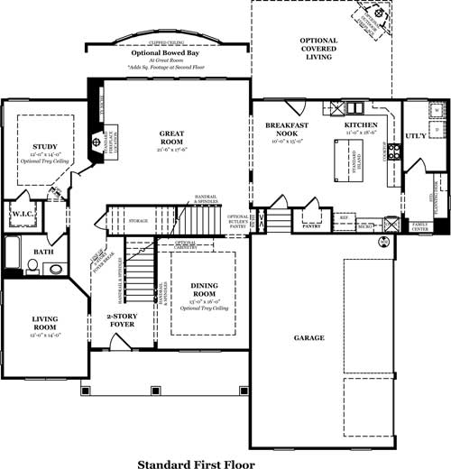
  • Brunswick Standard First FloorBrunswick Standard First Floor
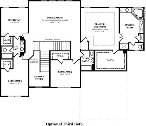
  • Brunswick Standard Second FloorBrunswick Standard Second Floor
  • Brunswick Optional Guest SuiteBrunswick Optional Guest Suite
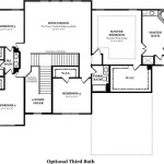
  • Brunswick Optional 3rd BathBrunswick Optional 3rd Bath
  • Brunswick Master Bath OptionsBrunswick Master Bath Options