Camden IV
This Home is Available In:





Floorplan Quickview
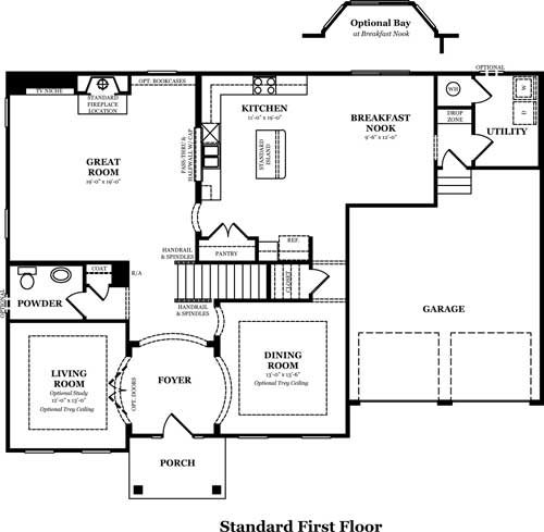
Camden IV Standard First Floor
Camden IV Standard Second Floor
Camden IV Optional First Floor
Camden IV Optional Kitchen Layouts
Camden IV Optional Gourmet Kitchen
Camden IV Optional Study ILO 4th Bedroom
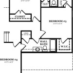
Camden IV 5th Bedroom & Bath
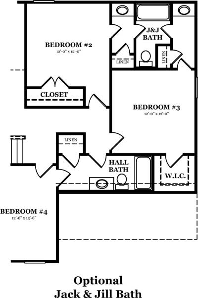
Camden IV Optional Jack & Jill Bath
Camden IV Optional Shower at Master Bath
Camden IV Master Bath Options



