Georgetown IV
This Home is Available In:




Floorplan Quickview
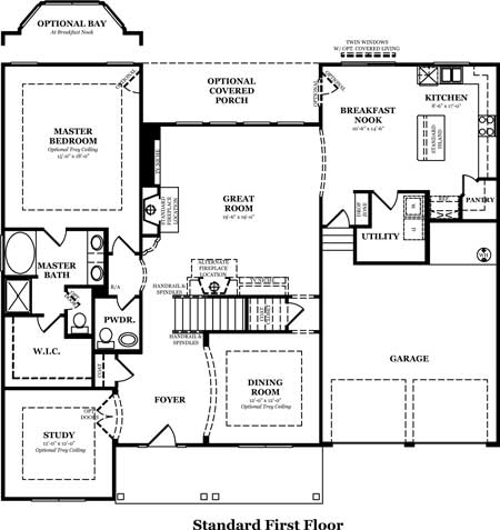
Georgetown IV Standard First Floor
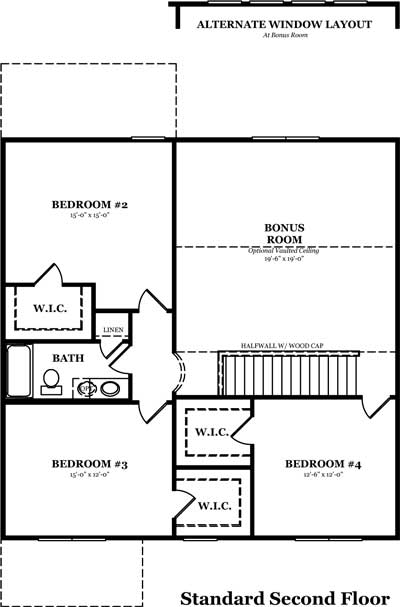
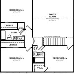
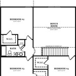
Georgetown IV Standard Second Floor
Georgetown IV Optional First Floor
Georgetown IV Optional Luxury Kitchen
Georgetown IV Optional 5th Bedroom & Bath above Kitchen
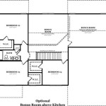
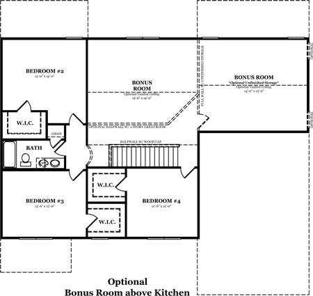
Georgetown IV Optional Bonus Room above Kitchen
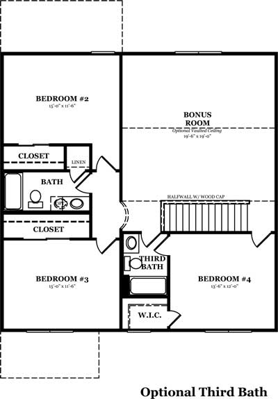
Georgetown IV Optional 3rd Bath
Georgetown IV Optional Jack & Jill Bath
Georgetown IV Optional Deluxe Master Bath
Georgetown IV Optional Shower @ Master Bath
Georgetown IV Optional Luxury Master Bath



