Hawthorne II
This Home is Available In:
Floorplan Quickview
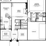
Hawthorne II Standard First Floor
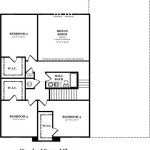
Hawthorne II Standard Second Floor
Hawthorne II Optional Luxury Kitchen
Hawthorne II Optional 5th Bedroom & Bath
Hawthorne II Optional 3rd Bath
Hawthorne II Optional Luxury Master Bath
Hawthorne II Optional Deluxe Master Bath
Hawthorne II Optional Unfinished Storage
Hawthorne II Optional Bonus Room



