Hickory
This Home is Available In:




Floorplan Quickview
View Full Floorplan
Hickory Standard First Floor
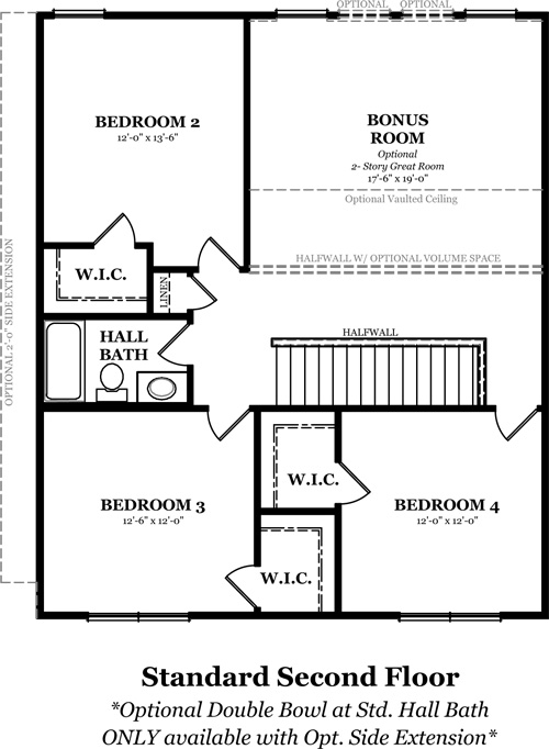
Hickory Standard Second Floor
Hickory Optional Extended Kitchen
Hickory Optional 5th Bedroom
Hickory Optional Extended Master Bedroom
Hickory Optional Master Bedroom
Hickory 5th Bedroom Options
Hickory Master Bath Options
Hickory Bonus Room Options
Hickory Optional 2 Story & Double Bowl at Hall Bath



