Jefferson
This Home is Available In:




Floorplan Quickview
Jefferson Standard First Floor
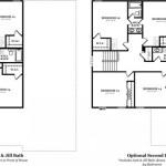
Jefferson Standard Second Floor & Optional Bonus Room
Jefferson Optional Gourmet Kitchen
Jefferson Optional Study
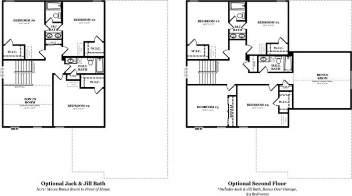
Jefferson Second Floor Options
Jefferson Optional Bedroom & Bath and Study & Storage
Jefferson Optional Luxury Master Bath
Jefferson Bathroom Options
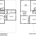
Jefferson 5th Bedroom Options



