Madison II
This Home is Available In:





Floorplan Quickview
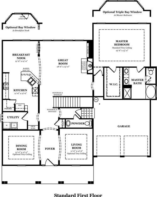
Madison II Standard First Floor
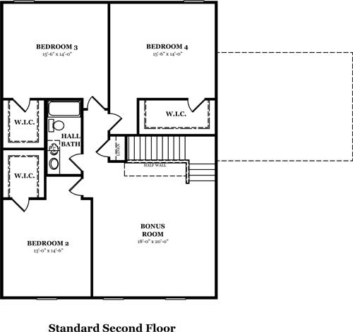
Madison II Standard Second Floor
Madison II Optional Deluxe Kitchen
Madison II Optional Kitchen Layouts
Madison II Optional Study
Madison II Optional Bedroom & Bath
Madison II Optional 5th Bedroom
Madison II Optional 3rd Bath
Madison II Optional 3rd Bath
Madison II Optional Change Hall Bath to Jack & Jill Bath
Madison II Master Bath Options
Madison II Optional Unfinished Storage
Madison II 2 Story Options
Madison II Optional Shower @ Master Bath



