Monticello
This Home is Available In:

Floorplan Quickview
Monticello Standard First Floor
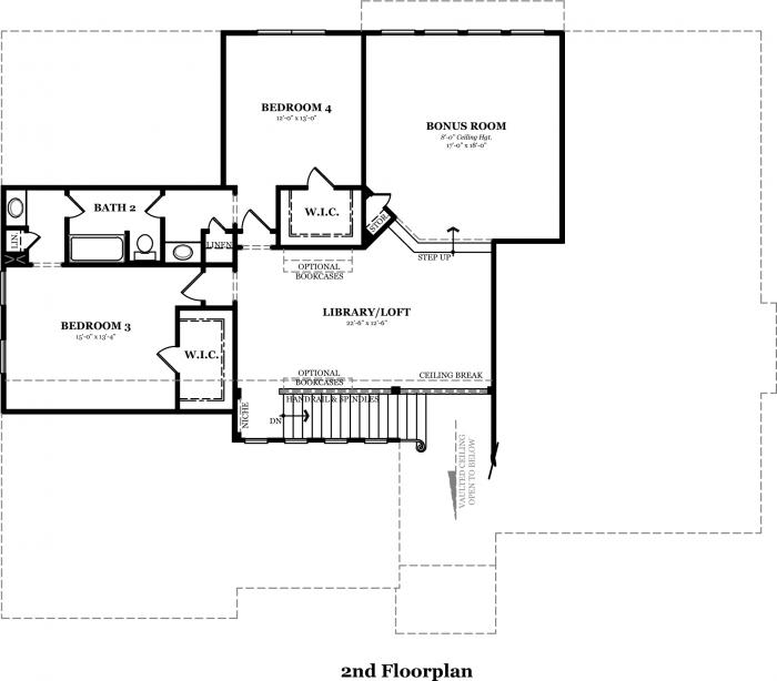
Monticello Standard Second Floor
Monticello Optional Sunroom
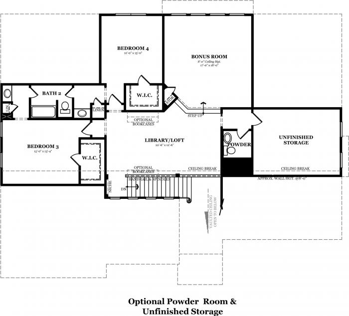
Monticello Optional Powder Room & Unfinished Storage
Monticello Optional Covered Outdoor Living
Monticello Optional Media Room
Monticello Optional Master Suite
Monticello Optional Hearth Room
Monticello Optional 5th Bedroom & Bath



