Moran

This Home is Available In:


Floorplan Quickview

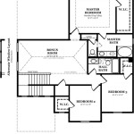
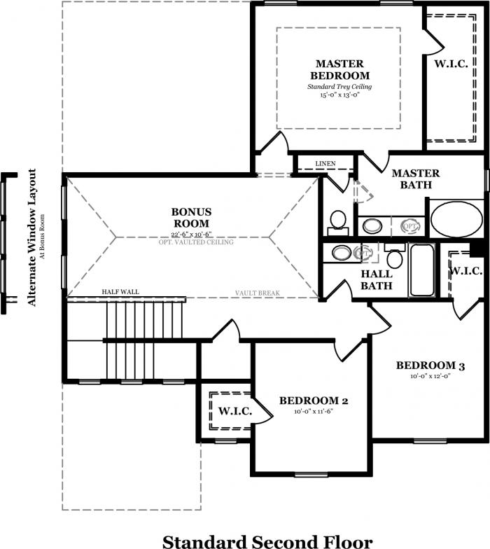
  • Moran Standard Second FloorMoran Standard Second Floor
  • Moran Standard First FloorMoran Standard First Floor
  • Moran First Floor w/Basement AccessMoran First Floor w/Basement Access
  • Moran Optional RetreatMoran Optional Retreat
  • Moran Optional Master Bath w/ ShowerMoran Optional Master Bath w/ Shower
  • Moran Optional Master Bath w/ Seperate Tub & Shower Moran Optional Master Bath w/ Seperate Tub & Shower