Oxbridge

This Home is Available In:


Floorplan Quickview

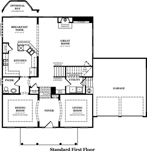
  • Oxbridge Standard First FloorOxbridge Standard First Floor
  • Oxbridge Standard Second FloorOxbridge Standard Second Floor
  • Oxbridge Optional First FloorOxbridge Optional First Floor
  • Oxbridge Optional Luxury KitchenOxbridge Optional Luxury Kitchen
  • Oxbridge Master Bath OptionsOxbridge Master Bath Options
  • Oxbridge Optional Shower @ Master BathOxbridge Optional Shower @ Master Bath