Pierce

This Home is Available In:


Floorplan Quickview

  • Pierce Standard First Floor and Optional Luxury Master BathPierce Standard First Floor and Optional Luxury Master Bath
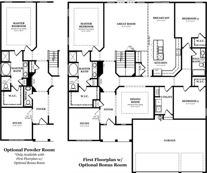
  • Pierce First Floor w/Optional Bonus Room & Optional Powder RoomPierce First Floor w/Optional Bonus Room & Optional Powder Room
  • Pierce Optional KitchenPierce Optional Kitchen
  • Pierce Optional Bonus and Powder RoomPierce Optional Bonus and Powder Room
  • Pierce Optional Show at Master BathPierce Optional Show at Master Bath