Rainsford

This Home is Available In:


Floorplan Quickview

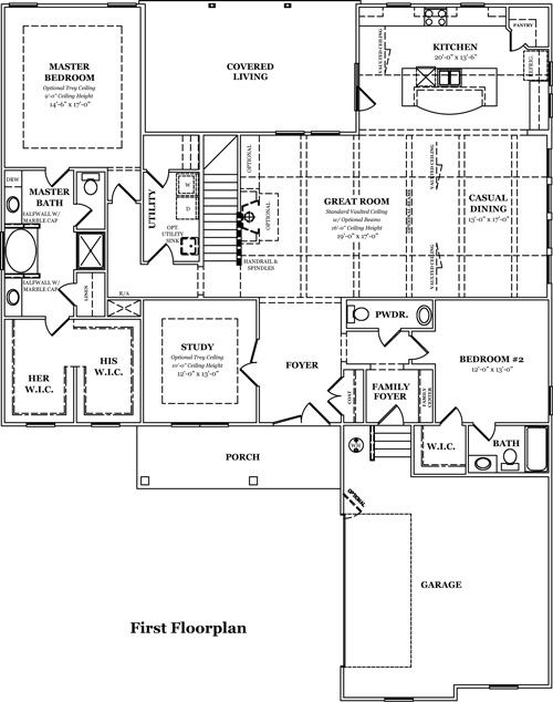
  • Rainsford Standard First FloorRainsford Standard First Floor
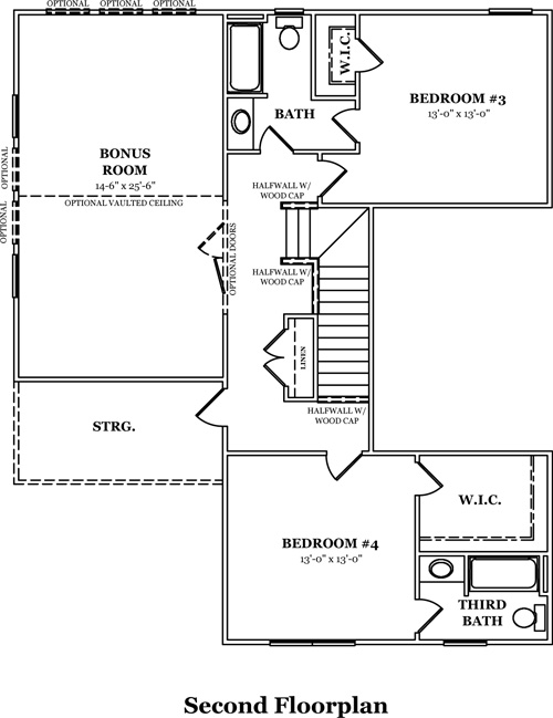
  • Rainsford Standard Second FloorRainsford Standard Second Floor
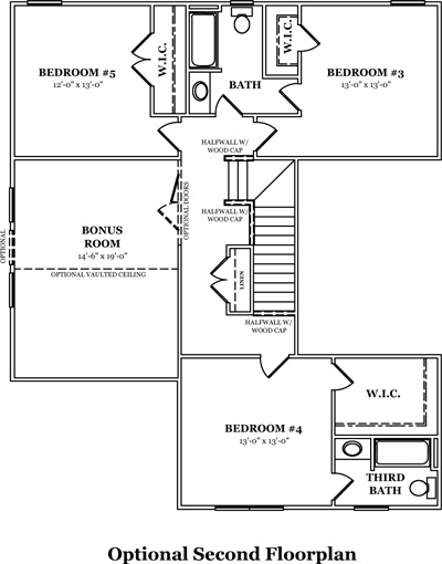
  • Rainsford Optional Second FloorRainsford Optional Second Floor
  • Rainsford Master Bath Options Rainsford Master Bath Options