Russell II

This Home is Available In:


Floorplan Quickview

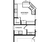
  • Russell II Standard First FloorRussell II Standard First Floor
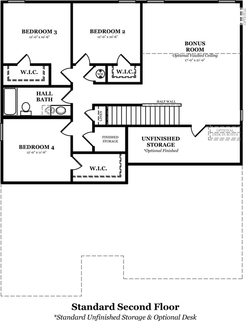
  • Russell II Standard Second FloorRussell II Standard Second Floor
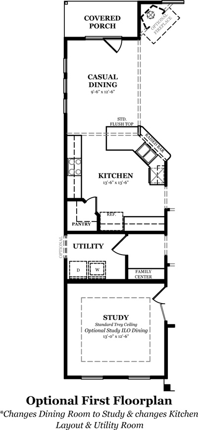
  • Russell II Optional First FloorRussell II Optional First Floor
  • Russell II Optional Second FloorRussell II Optional Second Floor
  • Russell II Optional Luxury Master BathRussell II Optional Luxury Master Bath