Stamford
This Home is Available In:



Floorplan Quickview
Stamford Standard First Floor
Stamford Standard Second Floor
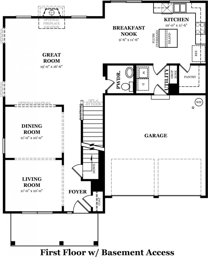
Stamford First Floor w/Basement Access
Stamford Optional First Floor
Stamford Optional Second Floor
Stamford Optional Jack & Jill Bath
Stamford Optional Double Bowl at Hall Bath
Stamford Optional Master Bath
Stamford Optional 3rd Bath
Stamford Optional Bonus Room



